Apartment And Room Anica
Preview only — see all hotel photos
See all 49 photos 1 /
49
9.2
155 חוות דעת
Best options for your travel dates
להציג את המלון במפה
Apartment And Room Anica
פחות מ-1 ק"מ ממרכז העיר של טולמין, Apartment And Room Anica כולל חדרי אירוח עם נופים של גינה. אורחים המטיילים ברכב יכולים גם כן להישתמש בחנייה באתר.
Viewpoint נמצא במרחק של 4.3 ק"מ מהמלון וKobala takeoff בערך תוך 4 ק"מ.
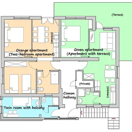
איזור התלבשות, ציוד להכנת תה וקפה וטלוויזיה עם מסך שטוח וערוצי לוויין וכמו כן גם שירותים נפרדים ומקלחת כלולים בכל החדרים.
אורחים יכולים ליהנות מטניס דשא, בדמינטונג ונסיעה באופניים.
האורחים יכולים לנסות ארוחות אירופאיות בפיצריה Pizzeria Soca 202 הממוקמת במרחק של 300 מטר.
עוד +
פחות -
נא להמתין, אנחנו בודקים חדרים זמינים בשבילך.
מחפש מלונות
מתקנים
השרותים הפופולריים ביותר
- אינטרנט אלחוטי חינם
- 24-שעות
- צ'ק-אין/-אאוט מהיר
- פעילויות
- ידידותי לילדים
- מיזוג אוויר
- ללא חיות מחמד
מתקנים
כללי:
- ללא-עישון בכל החללים הפרטיים והציבוריים
- Wi-Fi בחינם באזורים ציבוריים
- חניה
- קבלה 24-שעות
- אקספרס צ'ק אין/ צ'ק אאוט
- אין להביא חיות מחמד
- אבטחה
- שמירת חפצים
- גלאי עשן
- תחנת טעינה חשמלית
- מטפי כיבוי
- גישה עם מפתח
ארוחות:
- קומקום
- מייבש
- כלי מטבח
ספורט:
- מרפסת שמש
- גן
- נסיעה באופניים
שרותים:
- שירות הסעות מ/ אל נמל התעופה (בתשלום)
- ניתן לקבל שירות לחיות בית
מאפייני חדר:
- מיזוג אוויר
- חימום
- אזור הסבה
- חדרון הלבשה
- טרסה
- רהיטי גן
- מתקני תה וקפה
- שולחן אוכל
- שירותי גיהוץ
- מכונת כביסה
- מוצרי רחצה חינם
- LCD TV
- מיטת תינוקות/ עריסות
- משחקי לוח
- משחקיה
מדיניות
צ'ק-אין: מ15:00 עד 23:30
צ'ק-אוט: מ01:00 עד 10:00
- ילדים ומיטות נוספות
- אין בחדר מיטות נוספות.
מפה
אטרקציות מקומיות
נמלי תעופה
- נמל התעופה ברניק (85 ק"מ)
חוות דעת
כתוב ביקורת
100% ביקורות מאומתות
9.2 /10